Bàn cầu một khối V63
Mã sản phẩm: V63
Được thiết kế độc quyền từ Phòng nghiên cứu phát triển sản phẩm (R&D), bàn cầu có thiết kế nguyên khối công thái học, vành Rimless trơn láng – tránh đọng nước, men Ag+ Ceramic kháng khuẩn. Sản phẩm đạt tiêu chuẩn ASME Hoa Kỳ.
1.Thiết kế không vành
Bàn cầu một khối V63 thiết kế liền mạch, trơn láng, không góc khuất giúp ngăn ngừa vi khuẩn sinh sôi, hạn chế mùi hôi và giúp người dùng dễ dàng vệ sinh lau chùi.
2. Men Nano Titan Ag+ Ceramic kháng khuẩn, tự làm sạch hiệu quả
Toàn bộ phần sứ của bàn cầu một khối V63 được tráng men Nano Titan Ag+ Ceramic - công nghệ men độc quyền của Viglacera. Đây là lớp men chứa tác nhân kháng khuẩn ion bạc Ag+ Ceramic, có công dụng kháng đến 89% vi khuẩn, được kiểm nghiệm bởi Viện Pasteur thành phố Hồ Chí Minh.
Lớp men được thủy tinh hóa, gắn chặt lên bề mặt sản phẩm, có khả năng chống thấm, chống bám dính, tự làm sạch hiệu quả. Giữ cho sản phẩm luôn sáng bóng, bền lâu trong suốt thời gian sử dụng.
3. Thiết kế nguyên khối, kích thước nhỏ gọn
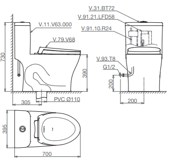
Bàn cầu một khối V63 có kích thước nhỏ gọn chỉ D700* R395 * C730, phù hợp cho mọi diện tích và yêu cầu sử dụng.
Đặc biệt, thiết kế liền khối, đường nét thiết kế tối giản giúp hạn chế tối đa việc bám đọng vi khuẩn, bụi bẩn hay các vết ố vàng ở các thành, vách,... Giúp người dùng dễ dàng vệ sinh, giảm thiểu thời gian và công sức lau chùi bồn cầu.
Thông tin chi tiết về bàn cầu V63
- Mã sản phẩm: V63
- Kiểu dáng một khối, dễ dàng vệ sinh và ngăn bám bẩn
- Công nghệ xả: Turbo vortex (xả xoáy vành trơn kết hợp lực hút Siphon, hạn chế tiếng ồn)
- Men sứ Nano Titan Ag+ Ceramic: Kháng khuẩn, chống bám dính
- Cột cấp Piston tránh tình trạng tắc nghẽn
- Nắp nhựa PP êm
- Xả nhấn tiết kiệm nước với 2 chế độ tiểu | đại: 3L | 6L
- Kích thước: tâm lỗ chờ ống thải cách bề mặt tường hoàn thiện ít nhất 305 mm.
- Đạt tiêu chuẩn TCVN 12649-2020, TCVN 12650-2020
- Đạt tiêu chuẩn ASME A112.19.2/CSA B45.1
- Xem bản vẽ kỹ thuật bên dưới
Kích thước: Xem bản vẽ kỹ thuật bên dưới
